orientationchange Not Supported on this Device.

PROJETOS
LORETO BAY
Loreto, Mexico

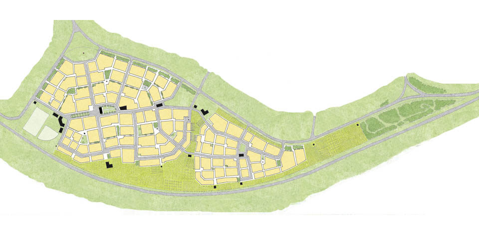
A porção leste do site da Rodovia 1 contém a maioria dos lotes urbanizados no plano diretor, composto das fases de 1 a 6 e 9. A área acomoda seis bairros peatonais e um Town Center. Os bairros proporcionaram um mix de tipos de habitação, bem como serviços básicos a uma curta distância dos moradores. O Town Center irá proporcionar a maior concentração de espaço comercial e ser maior densidade do que os bairros circundantes. Também estão incluídos provisões para um campo de golfe adicionais e sites de hotéis numerosos nos bairros.