News
Company
Services
Projects
Links
Contact
News
Company
Services
Projects
Links
Contact
orientationchange Not Supported on this Device.
PROJECTS
Urban Design
Architecture
Landscape
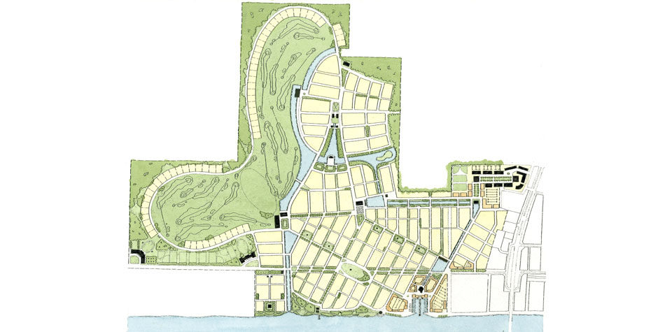
BON SECOUR
Gulf Shores, Alabama, USA Proyect Participation
Overview
Masterplan
.
Search for: